BALKEN-EN PLANKENZAAG BSW76E
BALKEN-EN PLANKENZAAG BSW76E
LUMAG BALKEN-EN PLANKENZAAG BSW76E
De 400 volt Lumag bandzaag BSW76E is voorzien van een zeer krachtige 7500Watt motor.
De Lumag BSW76E staat ook wel bekent als horizontale lintzaag, boomzaag of blokbandzaag is een degelijke stamhout zaagmachine/ boomzaagmachine.
Met deze bandzaag zaagt u uw boomstammen in mooie planken en balken.
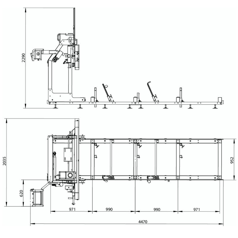
De maximale te zagen stam diameter is 76cm.
De zaagmachine is eenvoudig op te bouwen en te verplaatsen.
De machine is standaard voorzien van een 400 volt motor maar ook leverbaar met een krachtige benzinemotor (BSW76GL). De machine kan mede hierdoor overal worden opgebouwd waar u bomen wilt zagen.
Het onderstel heeft een standaard lengte van 3,96 meter maar is onbeperkt te verlengen.
De zaagmachine is door zijn bouw en de geleidelijke en rustige loop van de aandrijfwielen zeer geschikt voor het zagen van zacht, hard en droog hout.
Het voortbewegen van de zaag gebeurt handmatig. In de standaard uitvoering kan de machine boomstammen zagen tot een lengte van 3,1 meter.
Optioneel kan de machine onbeperkt verlengt worden met extra verlengstukken (per 1950mm). Hierdoor is geen beperking met betrekking tot de maximale boomlengte.
De tank van 12 liter kan gevuld worden met koelmiddel (water) en is voorzien van een instelbare waterkraan om het zaagblad extra te koelen.
De machine is voorzien van een 400Volt gemotoriseerde hoogteverstelling met elektrische hoogte weergave.
U stelt dus elektronisch de zaagdikte in.
De machine is voorzien van een lintzaag type Woodmaster / Lenox ( L/4026 x B/32 x Sterkte 1,1 mm met 22mm tandafstand)
Type Motor
400 Volt
Motorvermogen
7500 Watt
Max. stamdiameter
760mm
Max. plankbreedte
760mm
Max.zaaghoogte instelling
620mm
Min. Zaaghoogte instelling
50mm
Max. zaagdiepte
130mm
Zaagframe lengte*
3960mm
* verlengstuk zaagframe
1950mm
Max. zaaglengte
In de basis 3,1m /onbeperkt
Min. zaaglengte
990mm
Zaagmachine aandrijving
manueel
Vliegwiel diameter
474mm
Vliegwiel breedte
24mm
Lintzaagsnelheid
15m/sec
Zaagsnede dikte
1,4-2,2mm
Koeltank inhoud
12 liter
Gewicht extra zaagframe
54kg
Gewicht Netto
433 Kg
Verpakkingsmaten (L/B/H)
2260 x 730 x 885mm
Afmetingen (LxBxH)
4470 x 2035 x 1720mm
Art. nr.
BSW76E
EAN code
4047424008065






















