BALKEN- UND BLATTSÄGE BSW76E
LUMAG BALKEN- UND BRETTSÄGE BSW76E
Die 400-Volt-Lumag-Bandsäge BSW76E ist mit einem sehr leistungsstarken 7500-Watt-Motor ausgestattet.
Die Lumag BSW76E wird auch als Horizontalbandsäge, Baumsäge oder Blockbandsäge bezeichnet und ist eine solide Blocksäge/Baumsägemaschine.
Mit dieser Bandsäge können Sie Ihre Baumstämme in schöne Bretter und Balken sägen.
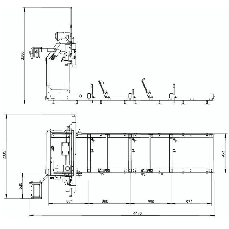
Der maximal schneidbare Stammdurchmesser beträgt 76 cm.
Die Sägemaschine ist einfach zu montieren und zu transportieren.
Die Maschine ist standardmäßig mit einem 400-Volt-Motor ausgestattet, aber auch mit einem leistungsstarken Benzinmotor (BSW76GL) erhältlich. Teilweise aus diesem Grund kann die Maschine überall montiert werden, wo Sie Bäume sägen möchten.
Das Chassis hat eine Standardlänge von 3,96 Metern, kann aber unbegrenzt verlängert werden.
Die Sägemaschine eignet sich aufgrund ihrer Bauweise und dem ruhigen und ruhigen Lauf der Antriebsräder sehr gut zum Sägen von weichem, hartem und trockenem Holz.
Der Vorschub der Säge erfolgt manuell. In der Standardausführung kann die Maschine Stämme bis zu einer Länge von 3,1 Metern schneiden.
Optional kann die Maschine mit zusätzlichen Verlängerungen (je 1950 mm) unbegrenzt erweitert werden. Somit gibt es keine Begrenzung hinsichtlich der maximalen Auslegerlänge.
Der 12-Liter-Tank kann mit Kühlmittel (Wasser) befüllt werden und ist mit einem regulierbaren Wasserhahn ausgestattet, um das Sägeblatt zusätzlich zu kühlen.
Die Maschine ist mit einer 400 Volt motorischen Höhenverstellung mit elektrischer Höhenanzeige ausgestattet.
So stellen Sie die Sägestärke elektronisch ein.
Die Maschine ist ausgestattet mit einer Bandsäge Typ Woodmaster / Lenox (L/4026 x B/32 x Stärke 1,1 mm mit 22 mm Zahnteilung)
Geben Sie Motor ein
400 Volt
Motorleistung
7500 Watt
max. Stammdurchmesser
760mm
max. Dielenbreite
760mm
Max. Schnitthöheneinstellung
620mm
Mindest. Schnitthöheneinstellung
50mm
max. Schnitttiefe
130mm
Sägerahmenlänge*
3960mm
* Verlängerung des Sägerahmens
1950mm
max. Schnittlänge
Basis 3,1 m / unbegrenzt
Mindest. Schnittlänge
990mm
Sägemaschinenantrieb
Handbuch
Schwungraddurchmesser
474mm
Schwungradbreite
24mm
Geschwindigkeit der Bandsäge
15 m/Sek
Sägeschnittdicke
1,4-2,2 mm
Inhalt des Kühltanks
12 Liter
Gewicht des zusätzlichen Sägerahmens
54kg
Gewicht netto
433 kg
Packungsgrößen (L/B/H)
2260 x 730 x 885 mm
Abmessungen (LxBxH)
4470 x 2035 x 1720 mm
Kunst. Nein.
BSW76E
EAN-Code
4047424008065






















