BEAM AND PLANK SAW BSW76E
LUMAG BEAM AND PLANK SAW BSW76E
The 400 volt Lumag band saw BSW76E is equipped with a very powerful 7500 Watt motor.
The Lumag BSW76E is also known as a horizontal band saw, tree saw or block band saw. It is a solid log saw/tree sawing machine.
With this band saw you can saw your tree trunks into beautiful planks and beams.
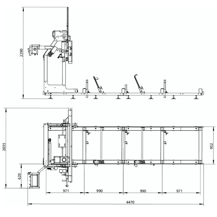
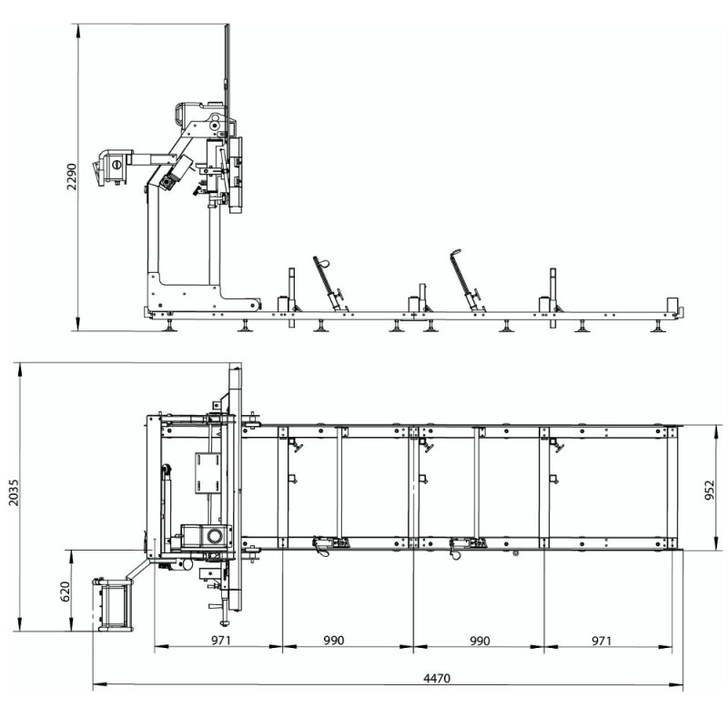
The maximum trunk diameter that can be cut is 76 cm.
The sawing machine is easy to assemble and move.
The machine is standard equipped with a 400 volt engine, but also available with a powerful petrol engine (BSW76GL). Partly because of this, the machine can be mounted anywhere you want to saw trees.
The chassis has a standard length of 3.96 meters but can be extended indefinitely.
Due to its construction and the smooth and smooth running of the drive wheels, the sawing machine is very suitable for sawing soft, hard and dry wood.
The advancing of the saw is done manually. In the standard version, the machine can cut logs up to 3.1 meters in length.
Optionally, the machine can be extended indefinitely with extra extensions (per 1950mm). This means that there is no limitation with regard to the maximum boom length.
The 12 liter tank can be filled with coolant (water) and is equipped with an adjustable water tap to additionally cool the saw blade.
The machine is equipped with a 400 Volt motorized height adjustment with electric height display.
So you set the saw thickness electronically.
The machine is equipped with a band saw type Woodmaster / Lenox (L/4026 x W/32 x Strength 1.1 mm with 22 mm tooth spacing)
Type Engine
400 Volt
Engine power
7500 Watts
max. trunk diameter
760mm
max. plank width
760mm
Max. cutting height setting
620mm
min. Cutting height setting
50mm
max. cutting depth
130mm
Saw frame length*
3960mm
* extension saw frame
1950mm
max. cutting length
Basic 3.1m /unlimited
min. cutting length
990mm
Sawing machine drive
manual
Flywheel diameter
474mm
Flywheel width
24mm
Band saw speed
15m/sec
Saw cut thickness
1.4-2.2mm
Cooling tank content
12 liters
Weight of additional saw frame
54kg
Weight Net
433 kg
Pack sizes (L/W/H)
2260 x 730 x 885mm
Dimensions (LxWxH)
4470 x 2035 x 1720mm
art. no.
BSW76E
EAN code
4047424008065






















